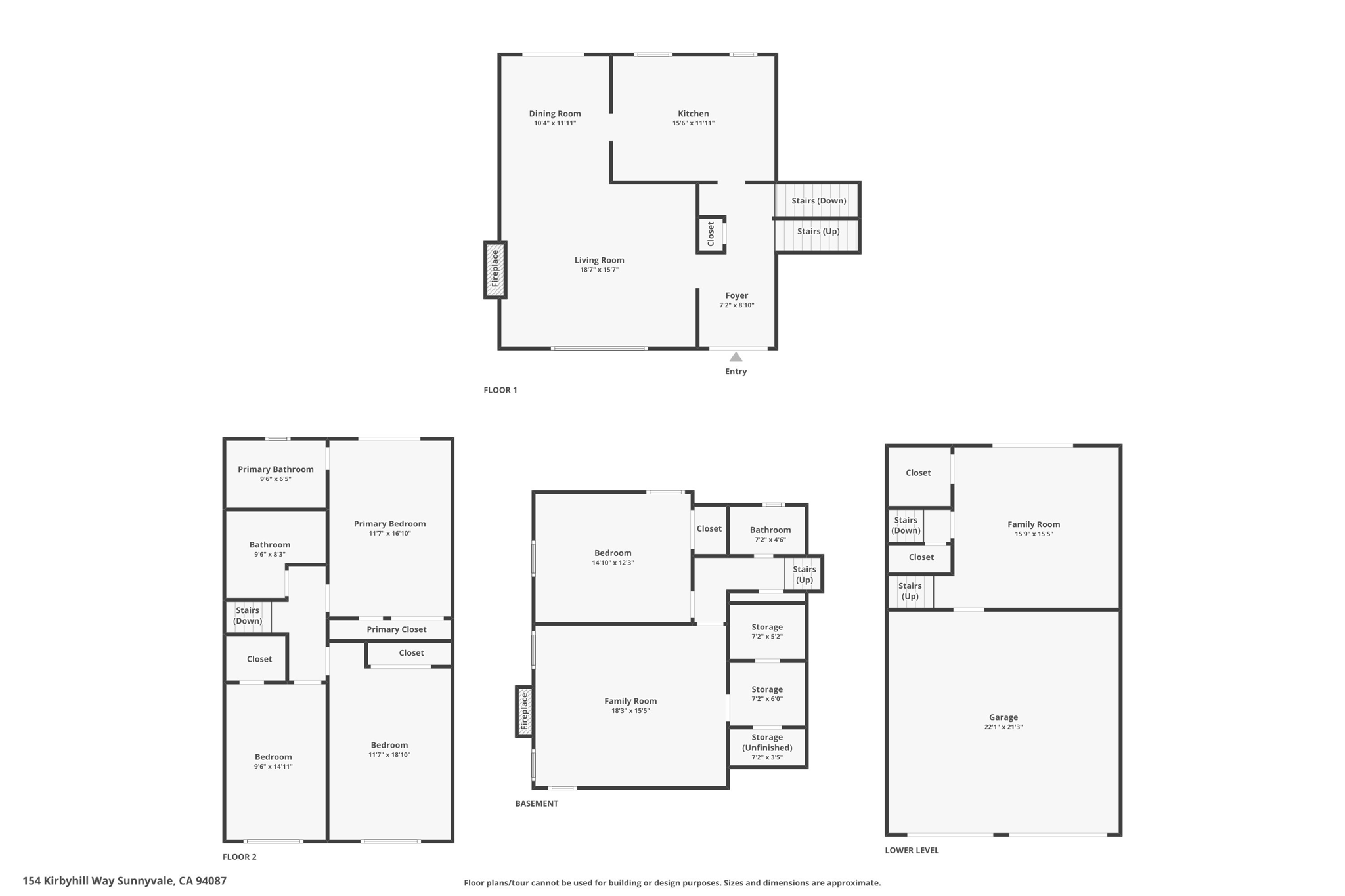
Details

  • 5 Bedrooms
  • 3.5 Bathrooms
  • 2,480 Sq/ft

Images

Videos

Floor Plans

3D Tour

Contact

Feel free to contact us for more details!